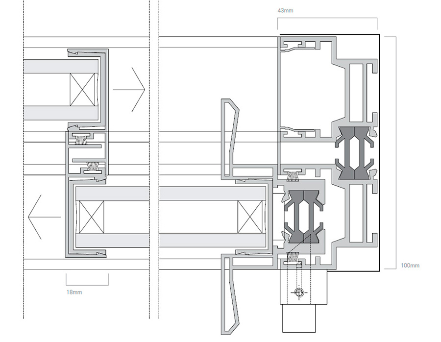
SERIE PH 26

Esta serie se utiliza para el exterior, permite un óptimo aislamiento acústico y térmico, por sus características de espesor reducido, es más utilizado en los sistemas constructivos con destino a los países cálidos y tropicales (variación de la temperatura mínima +- 5ºC).

Es un sistema que permite la inclusión de una red mosquitera tanto en el interior como también en las persianas exteriores, así mismo admite ventanas de doble acristalamiento con hojas de vidrio con superficies acristaladas de hasta 6m2 con o sin motorización.

PH26

Detalle constructivo de un carril doble de corredera escala del detalle 1:1

OTRAS SERIES